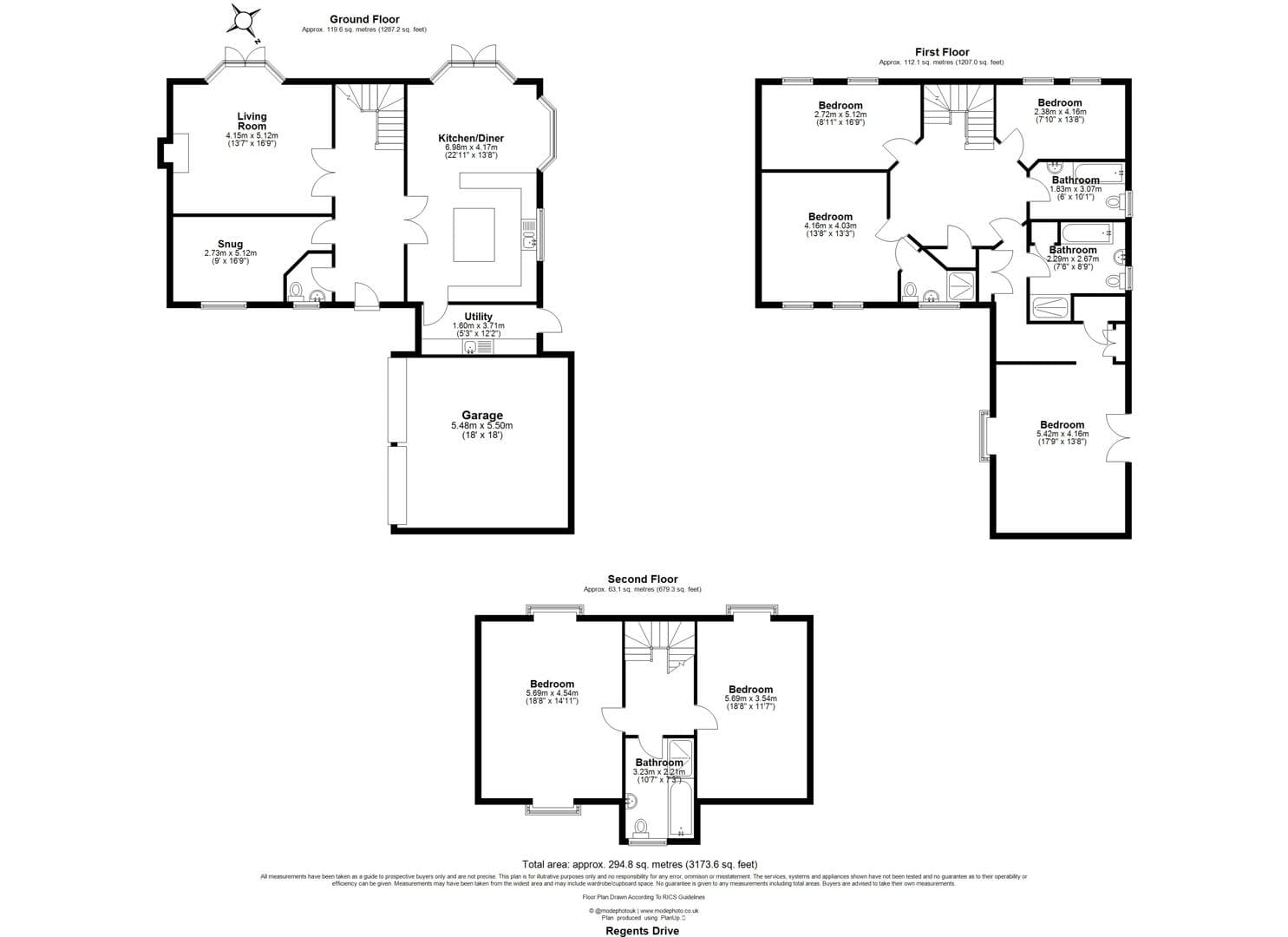
Nestled in the desirable area of Woodford Green, this impressive detached house on Regents Drive offers a perfect blend of modern living and spacious comfort. Built in 2002, the property boasts an expansive 2,885 square feet of living space, making it an ideal family home.
Upon entering, you are greeted by two generously sized reception rooms, perfect for entertaining guests or enjoying quiet family evenings. The layout of the house is thoughtfully designed, providing ample room for relaxation and socialising. With six well-appointed bedrooms, there is plenty of space for family members or guests, ensuring everyone has their own private retreat.
The property features five bathrooms, which is a significant advantage for larger families or those who enjoy hosting visitors. This ensures convenience and privacy for all occupants.
The location in Woodford Green is highly sought after, known for its excellent schools, parks, and local amenities. Residents can enjoy a peaceful suburban lifestyle while still being within easy reach of central London.
This remarkable home is a rare find, combining modern design with practical living spaces. It is perfect for those seeking a spacious and stylish residence in a vibrant community. Do not miss the opportunity to make this exceptional property your own.
Mortgage
Estimated Monthly Mortgage Payment:
£6,709 /mo.
25 Years, 3.75% Interest
Loan
£1,305,000
Total Repay
£2,012,824
Stamp Duty
You’ll have to pay the stamp duty of:
£88,750
0% up to £125,000
2% from £125,000 to £250,000
5% from £250,000 to £925,000
10% from £925,000 to £1,450,000
Your effective stamp duty rate is 6.12%
Mortgage
Estimated Monthly Mortgage Payment:
£6,709 /mo.
25 Years, 3.75% Interest
Loan
£1,305,000
Total Repay
£2,012,824
Stamp Duty
You’ll have to pay the stamp duty of:
£88,750
0% up to £125,000
2% from £125,000 to £250,000
5% from £250,000 to £925,000
10% from £925,000 to £1,450,000
Your effective stamp duty rate is 6.12%
Register for Property Alerts
Register for Property Alerts
Register for Property Alerts
We tailor every marketing campaign to a customer’s requirements and we have access to quality marketing tools such as professional photography, video walk-throughs, drone video footage, distinctive floorplans which brings a property to life, right off of the screen.
We tailor every marketing campaign to a customer’s requirements and we have access to quality marketing tools such as professional photography, video walk-throughs, drone video footage, distinctive floorplans which brings a property to life, right off of the screen.